Mẫu Thiết Kế Nhà Phố 90m2 Theo Số Tầng
Nhà phố 90m² có thể thiết kế từ 1-3 tầng tùy thuộc nhu cầu gia đình. Trong đó, 2 tầng là lựa chọn phổ biến nhất với diện tích sử dụng 150-170m². Còn 3 tầng đạt 200-240m² sàn.
Tôi cần giải thích rõ: con số 90m² ở đây là diện tích đất, không phải diện tích sàn. Diện tích sử dụng thực tế bằng khoảng 85% diện tích đất nhân với số tầng phần còn lại dành cho tường, cầu thang, hành lang. Cụ thể, nhà 1 tầng cho khoảng 75-80m² sử dụng. Nhà 2 tầng có 150-170m². Nhà 3 tầng đạt 200-240m². Dưới đây là phân tích chi tiết từng phương án mà FHome Sài Gòn đã triển khai cho nhiều gia chủ tại TP.HCM.
Mẫu Thiết Kế Nhà Phố 90m2 1 Tầng
Thiết kế nhà phố 90m² 1 tầng tập trung vào không gian mở liên thông trên một mặt bằng duy nhất. Theo kinh nghiệm của FHome Sài Gòn, phương án này phù hợp với gia đình 2-3 người, vợ chồng trẻ chưa có con, hoặc người cao tuổi cần hạn chế leo cầu thang. Bố trí mặt bằng điển hình cho nhà 1 tầng 90m² mà tôi thường tư vấn:
- Phòng khách: 25m²
- Bếp – phòng ăn liên thông: 20m²
- 2 phòng ngủ: 12-15m²/phòng
- Nhà vệ sinh: 4-5m²
- Sân trước hoặc hành lang: phần còn lại
Với diện tích này, các khu vực như phòng khách và bếp nên được liên thông. Gia chủ có thể dùng nội thất đa năng hoặc vách ngăn ước lệ như thảm, kệ hở để phân định không gian mà không gây bí bách. Nội thất áp sát tường sẽ giải phóng lối đi trung tâm, tạo sự lưu thông thông suốt. Tôi khuyên chiều cao trần nên đạt 3.5-4m để không gian thoáng đãng hơn. Vật liệu sáng màu kết hợp kính và gương cũng giúp tăng cường ánh sáng tự nhiên và tạo chiều sâu.



Mẫu Thiết Kế Nhà Phố 90m2 2 Tầng
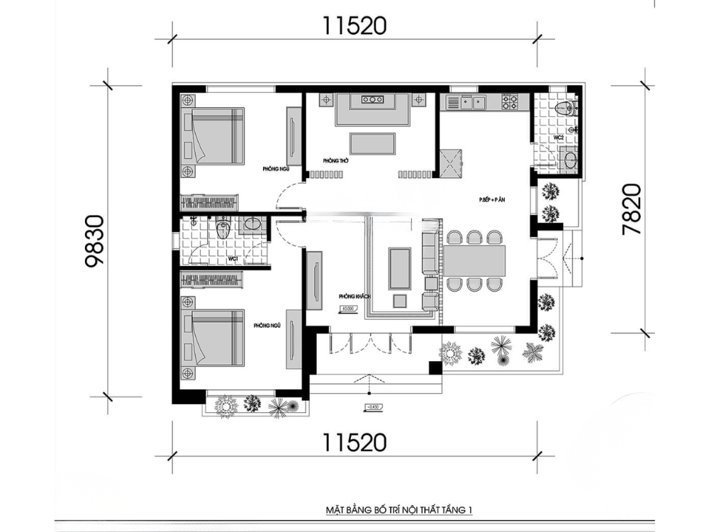
Thiết kế nhà phố 2 tầng 90m² là lựa chọn phổ biến nhất vì cân bằng giữa chi phí xây dựng và công năng sử dụng. Tổng diện tích sử dụng đạt 150-170m², phù hợp gia đình 4-5 người. Đây cũng là phương án FHome Sài Gòn nhận được yêu cầu nhiều nhất từ các gia chủ tại TP.HCM.
Phương án này phân chia rõ khu sinh hoạt chung (tầng 1) và khu nghỉ ngơi riêng tư (tầng 2).
Bố trí tầng 1:
- Phòng khách: 30m²
- Bếp – phòng ăn: 25m²
- Nhà vệ sinh: 4m²
- Garage hoặc sân trước: 15m²
Bố trí tầng 2:
- Phòng ngủ master (có WC riêng): 20m²
- 2 phòng ngủ con: 15m²/phòng
- Nhà vệ sinh chung: 5m²
Cầu thang chiếm khoảng 8-10m² mỗi tầng. Tôi thường gợi ý quý khách chọn cầu thang bay hoặc cầu thang kính cường lực để không gian thêm thoáng đãng. Về phong thủy, cầu thang không nên đặt đối diện cửa chính để tránh tản khí. Phòng khách và bếp tầng 1 nên liên thông để tạo không gian sinh hoạt chung rộng rãi cho cả gia đình.




Mẫu Thiết Kế Nhà Phố 90m2 3 Tầng
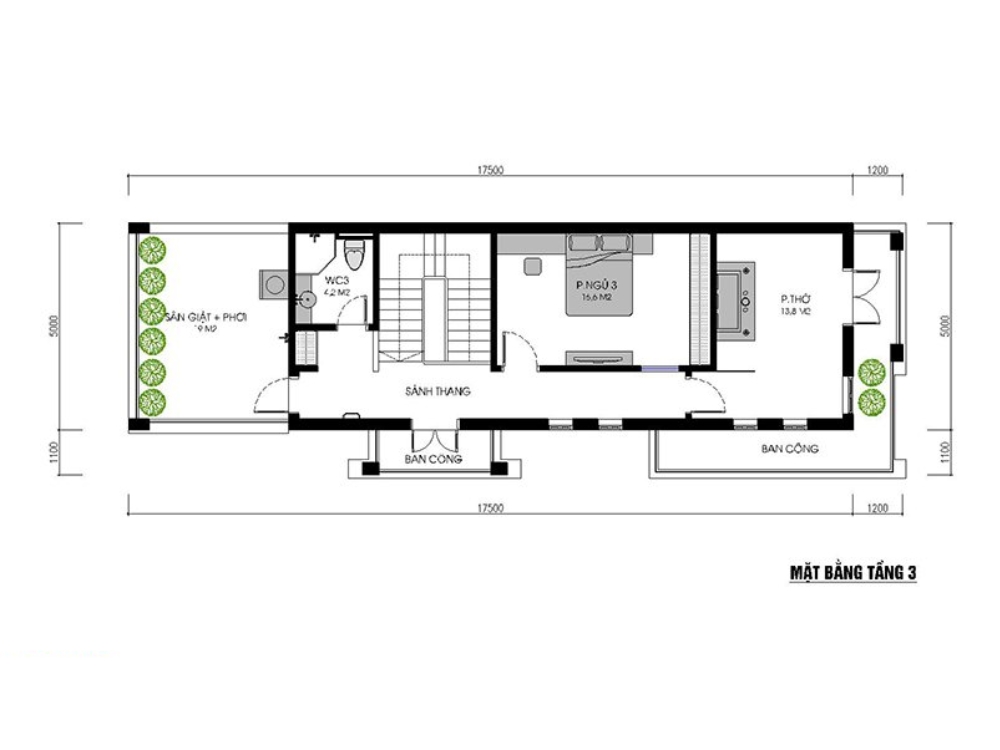
Thiết kế nhà phố 3 tầng 90m² mang đến tổng diện tích sử dụng 200-240m², lý tưởng cho gia đình đa thế hệ 5-7 người. Mỗi tầng có chức năng chuyên biệt: sinh hoạt chung (tầng 1), phòng ngủ (tầng 2), phòng thờ – làm việc – sân thượng (tầng 3).
Bố trí tầng 1:
- Phòng khách: 28m²
- Bếp – phòng ăn: 22m²
- Nhà vệ sinh: 4m²
- Garage: 15m²
Bố trí tầng 2:
- Phòng ngủ master: 18m²
- 2 phòng ngủ con: 14m²/phòng
- Nhà vệ sinh: 5m²
Bố trí tầng 3:
- Phòng thờ: 12m²
- Phòng làm việc hoặc phòng ngủ phụ: 15m²
- Sân thượng: 30m²
- Nhà vệ sinh: 4m²
Phương án này đáp ứng nhu cầu gia đình có ông bà, bố mẹ và 2-3 con. Theo kinh nghiệm của tôi, việc duy trì sự đồng bộ về phong cách, màu sắc và vật liệu giữa các tầng là yếu tố then chốt để tổng thể hài hòa. Giếng trời đặt giữa nhà (diện tích 2-3m²) giúp lấy sáng và thông gió tự nhiên cho các tầng. FHome Sài Gòn cũng khuyên quý khách có người cao tuổi nên cân nhắc lắp thang máy mini hoặc bố trí phòng ngủ ông bà ở tầng 1 để tiện di chuyển.





Mẫu Thiết Kế Nhà Phố 90m2 Theo Số Phòng Ngủ
Nhà phố 90m² có thể bố trí từ 2-4 phòng ngủ tùy thuộc số tầng và nhu cầu gia đình. Trong đó, 3 phòng ngủ là phổ biến nhất với nhà 2-3 tầng.
Đây là câu hỏi FHome Sài Gòn nhận được rất nhiều từ quý khách: “Với 90m² đất, tôi có thể bố trí được bao nhiêu phòng ngủ?”. Câu trả lời phụ thuộc vào số tầng và cách gia chủ phân bổ diện tích. Dưới đây là 3 phương án tôi thường tư vấn.
Thiết Kế Nhà Phố 90m2 2 Phòng Ngủ
Thiết kế nhà phố 90m² 2 phòng ngủ phù hợp với vợ chồng trẻ hoặc gia đình nhỏ 2-3 người. Phương án này cho phép mở rộng các không gian khác như phòng khách, bếp và khu vực làm việc tại nhà. Ưu điểm lớn nhất là mỗi phòng ngủ có diện tích rộng hơn, đạt 18-20m²/phòng. Gia chủ còn có thêm không gian cho phòng làm việc riêng hoặc phòng khách rộng rãi hơn.
Với nhà 1 tầng, tôi thường bố trí: phòng khách 30m², bếp-ăn 25m², 2 phòng ngủ 17m²/phòng. Với nhà 2 tầng, tầng 1 dành cho sinh hoạt chung, tầng 2 bố trí toàn bộ 2 phòng ngủ + WC + phòng làm việc. Cách bố trí này tạo sự riêng tư tuyệt đối cho khu nghỉ ngơi.

Quý khách quan tâm có thể tham khảo thêm thiết kế chung cư 2 phòng ngủ để có thêm ý tưởng bố trí.
Thiết Kế Nhà Phố 90m2 3 Phòng Ngủ
Thiết kế nhà phố 90m² 3 phòng ngủ là lựa chọn phổ biến nhất, đáp ứng nhu cầu gia đình 4-5 người với 1 phòng master và 2 phòng con. Phương án này thường triển khai trên 2-3 tầng. Tại sao 3 phòng ngủ phổ biến nhất? Vì đây là con số vừa đủ cho bố mẹ + 2 con, đồng thời vẫn có không gian cho phòng khách và bếp thoải mái.
Với nhà 2 tầng, FHome Sài Gòn thường bố trí: tầng 1 dành cho sinh hoạt chung, tầng 2 gồm phòng master 18m² + 2 phòng con 12-14m²/phòng. Với nhà 3 tầng, gia chủ có thêm 1 phòng linh hoạt ở tầng 3 làm phòng thờ, phòng làm việc hoặc phòng khách. Tôi lưu ý quý khách: phòng ngủ master nên có WC riêng 4-5m² để tiện sinh hoạt, 2 phòng con dùng chung 1 WC là đủ.

Tham khảo thêm thiết kế chung cư 3 phòng ngủ để có thêm góc nhìn về cách bố trí.
Thiết Kế Nhà Phố 90m2 4 Phòng Ngủ
Thiết kế nhà phố 90m² 4 phòng ngủ yêu cầu tối thiểu 3 tầng, phù hợp gia đình đa thế hệ 6-7 người hoặc gia đình có nhu cầu phòng ngủ dự phòng cho khách. Tôi cần nói rõ: với nhà 2 tầng 90m², việc bố trí 4 phòng ngủ rất khó đạt được sự thoải mái. Diện tích mỗi phòng sẽ chỉ còn 8-10m² quá chật. Vì vậy, 3 tầng là điều kiện bắt buộc. Đối tượng phù hợp là gia đình đa thế hệ: ông bà + bố mẹ + 2 con. Cách bố trí tôi thường tư vấn: tầng 2 gồm phòng master + 1 phòng ngủ, tầng 3 gồm 2 phòng ngủ + phòng thờ hoặc phòng làm việc.
Thách thức lớn nhất là diện tích mỗi phòng nhỏ hơn, chỉ đạt 10-14m². FHome Sài Gòn thường đề xuất các giải pháp: giường tầng cho phòng trẻ em, nội thất âm tường, tận dụng gầm cầu thang làm tủ lưu trữ. Những giải pháp này giúp tối ưu từng mét vuông mà vẫn đảm bảo công năng.

5 Phong Cách Thiết Kế Nội Thất Nhà Phố 90m2 Phổ Biến
5 phong cách thiết kế phổ biến cho nhà phố 90m² năm 2026 bao gồm: Hiện đại – Tối giản, Japandi, Wabi Sabi, Indochine và Tân cổ điển. Mỗi phong cách có đặc trưng riêng về vật liệu, màu sắc và bố cục phù hợp với các nhóm gia chủ khác nhau.
Việc lựa chọn phong cách thiết kế phù hợp sẽ quyết định đến linh hồn và giá trị thẩm mỹ của ngôi nhà. Với diện tích 90m², gia chủ có thể linh hoạt ứng dụng nhiều phong cách. Dưới đây, FHome Sài Gòn giới thiệu chi tiết từng phong cách kèm ưu nhược điểm và chi phí tham khảo.
Thiết Kế Nội Thất Nhà Phố 90m2 Phong Cách Hiện Đại
Thiết kế nội thất nhà phố 90m² phong cách Hiện đại ưu tiên công năng tối đa với đường nét thẳng gọn, loại bỏ chi tiết thừa. Bảng màu chủ đạo là trắng – đen – xám kết hợp gỗ công nghiệp và kim loại. Phong cách này phù hợp gia đình trẻ yêu thích sự ngăn nắp.
Đặc trưng thiết kế: đường nét thẳng, không gian mở, đồ đạc tối giản. Triết lý “hình thức đi theo công năng” giúp tối ưu hóa không gian nhà phố 90m² hiệu quả.
Vật liệu ưu tiên: gỗ công nghiệp (MDF, Melamine), kính cường lực, kim loại sơn tĩnh điện, bê tông trần. Bảng màu theo tỷ lệ 60-30-10: 60% màu trắng/be, 30% xám, 10% đen làm điểm nhấn.
Chi phí tham khảo tại FHome Sài Gòn: thiết kế 250.000-350.000đ/m², thi công trọn gói 8-12 triệu/m². Đây là mức chi phí trung bình, phù hợp đa số gia chủ.



Thiết Kế Nội Thất Nhà Phố 90m2 Phong Cách Japandi
Thiết kế nội thất nhà phố 90m² phong cách Japandi kết hợp sự tối giản Nhật Bản và ấm áp Bắc Âu. Vật liệu tự nhiên như gỗ sồi, tre, mây kết hợp bảng màu trung tính nhẹ nhàng tạo không gian thư thái. Phong cách này phù hợp gia đình yêu thiên nhiên với ngân sách trung bình-cao.
Đặc trưng thiết kế: vật liệu tự nhiên, đường nét mềm mại, không gian thoáng đãng. Sự kết hợp hài hòa giữa nét mộc mạc Scandinavian và triết lý “less is more” của Nhật Bản tạo nên vẻ thanh lịch riêng.
Vật liệu ưu tiên: gỗ sồi, tre, mây, vải lanh. Bảng màu: trắng kem, be, xám nhạt, nâu gỗ tự nhiên.
Tôi lưu ý quý khách: phong cách Japandi cần ánh sáng tự nhiên tốt để phát huy hết vẻ đẹp. Tránh bày quá nhiều đồ trang trí đây là lỗi phổ biến khiến không gian mất đi sự tinh tế.



Tham khảo thêm phong cách Nhật Bản để hiểu rõ hơn về triết lý thiết kế này.
Thiết Kế Nội Thất Nhà Phố 90m2 Phong Cách Wabi Sabi
Thiết kế nội thất nhà phố 90m² phong cách Wabi Sabi tôn vinh vẻ đẹp tự nhiên không hoàn hảo. Vật liệu thô mộc như gỗ chưa xử lý, đá tự nhiên, bê tông trần kết hợp bảng màu nâu đất – xám – trắng ngà tạo không gian an yên. Phong cách này phù hợp gia chủ yêu triết học, ngân sách cao do vật liệu tự nhiên.
Đặc trưng thiết kế: vật liệu thô, giữ nguyên texture tự nhiên, nội thất handmade. Triết lý Wabi Sabi tôn vinh những điều không hoàn hảo và tự nhiên.
Vật liệu ưu tiên: gỗ chưa xử lý, đá tự nhiên, bê tông trần, gốm thủ công. Bảng màu: nâu đất, xám, trắng ngà, đen than.
Tôi cần lưu ý quý khách: phong cách này dễ bị nhầm với “chưa hoàn thiện” nếu không có kiến trúc sư am hiểu. FHome Sài Gòn đã triển khai nhiều dự án Wabi Sabi và nhận thấy điểm mấu chốt là sự tiết chế biết dừng đúng lúc để giữ vẻ đẹp thô mộc mà không trông nhếch nhác.



Thiết Kế Nội Thất Nhà Phố 90m2 Phong Cách Indochine
Thiết kế nội thất nhà phố 90m² phong cách Indochine kết hợp kiến trúc Pháp thuộc địa và văn hóa Á Đông. Gỗ tối màu (gụ, hương), họa tiết đối xứng, đèn lồng, cửa gỗ lam kết hợp bảng màu nâu – xanh rêu – vàng đồng tạo không gian hoài cổ sang trọng. Phong cách này phù hợp gia chủ yêu văn hóa truyền thống hoặc sở hữu nhà phố có kiến trúc Pháp cũ.
Đặc trưng thiết kế: chi tiết cầu kỳ có chọn lọc, bố cục đối xứng, không gian thông thoáng. Sự giao thoa Đông – Tây tạo nên vẻ đẹp vừa quen thuộc vừa độc đáo.
Vật liệu ưu tiên: gỗ gụ, gỗ hương, gạch bông, mây tre. Họa tiết trang trí: hoa văn đối xứng, tranh sơn mài, đèn lồng, bình gốm. Bảng màu: nâu gỗ đậm, xanh rêu, vàng đồng, đỏ son.
Với diện tích 90m², tôi lưu ý quý khách cần chọn lọc chi tiết, tránh bày quá nhiều đồ đạc gây rối mắt. FHome Sài Gòn thường đề xuất tập trung điểm nhấn Indochine ở phòng khách và phòng ăn, các phòng ngủ giữ tối giản để cân bằng.
Thiết Kế Nội Thất Nhà Phố 90m2 Phong Cách Tân Cổ Điển
Thiết kế nội thất nhà phố 90m² phong cách Tân cổ điển kết hợp vẻ sang trọng cổ điển châu Âu với tiện nghi hiện đại. Phào chỉ tinh tế, bố cục đối xứng, vật liệu cao cấp như đá hoa cương, gỗ tự nhiên, da kết hợp bảng màu trắng – kem – vàng gold tạo không gian đẳng cấp. Phong cách này yêu cầu chiều cao trần tối thiểu 3.2m và ngân sách cao hơn 30-50% so với Hiện đại.
Đặc trưng thiết kế: phào chỉ, trần thạch cao, đèn chùm, gương khung vàng, bố cục đối xứng. Vật liệu ưu tiên: đá hoa cương, gỗ sồi/óc chó, da bò, kính mờ. Bảng màu: trắng, kem, vàng gold, xanh navy làm điểm nhấn.
Với 90m², tôi thường khuyên quý khách: tránh quá nhiều chi tiết phào chỉ sẽ khiến không gian bị nặng nề. Chọn 2-3 điểm nhấn Tân cổ điển (đèn chùm phòng khách, gương phòng ăn, đầu giường phòng ngủ) là đủ. Phong cách này phù hợp gia đình muốn thể hiện đẳng cấp và có ngân sách thoải mái.



Thiết Kế Nội Thất Nhà Phố 90m2 Theo Phòng Chức Năng
Thiết kế theo từng phòng chức năng giúp tối ưu công năng và thẩm mỹ cho nhà phố 90m². 6 không gian chính cần chú trọng: phòng khách, phòng bếp, phòng ngủ, phòng thờ, nhà vệ sinh và cầu thang.
Mỗi khu vực có những đặc thù riêng cần được tính toán kỹ lưỡng. Dưới đây, FHome Sài Gòn chia sẻ chi tiết cách bố trí và kích thước phù hợp cho từng không gian.
Thiết Kế Phòng Khách Nhà Phố 90m2
Phòng khách nhà phố 90m² thường có diện tích 20-30m², thiết kế không gian mở liên thông bếp. Bố trí chuẩn: sofa văng hoặc góc 2-2.4m, kệ TV treo tường, bàn trà đa năng. Ánh sáng tự nhiên qua cửa sổ và giếng trời cần được tận dụng tối đa.
Nguyên tắc bố trí mà tôi thường áp dụng: sofa áp tường, TV đối diện, lối đi trung tâm rộng 1-1.2m. Cách này giúp không gian thông thoáng và tiện di chuyển.
Kích thước nội thất khuyến nghị:
| Nội thất | Kích thước phù hợp |
|---|---|
| Sofa văng | 2-2.4m |
| Sofa góc | 2.2 x 1.6m |
| Bàn trà | 1-1.2m x 0.5-0.6m |
| Kệ TV treo tường | 1.6-2m |
Để tăng chiều sâu thị giác, FHome Sài Gòn thường đề xuất: gương trang trí trên tường, màu sơn sáng (trắng, be, xám nhạt).



Quý khách có thể tham khảo thêm Thiết kế phòng khách nhà phố để có thêm ý tưởng.
Thiết Kế Phòng Bếp Nhà Phố 90m2
Phòng bếp nhà phố 90m² thường chiếm 15-25m² (bao gồm khu ăn), thiết kế liên thông phòng khách. Hệ tủ bếp chữ I hoặc chữ L là lựa chọn tối ưu, tuân thủ nguyên tắc tam giác vàng (bếp – chậu rửa – tủ lạnh) với khoảng cách mỗi cạnh 1.2-2.7m.
Kiểu bếp phù hợp: chữ I cho nhà hẹp 5m, chữ L cho nhà rộng 6-7.5m. Nguyên tắc tam giác vàng giúp tối ưu thao tác nấu nướng gia chủ không phải di chuyển quá xa giữa 3 điểm chính.
Vật liệu tôi thường khuyên quý khách: mặt bếp đá nhân tạo hoặc granite (chống trầy, chịu nhiệt tốt), tủ gỗ công nghiệp chống ẩm như MDF chống ẩm hoặc Acrylic (bền, dễ vệ sinh).
Với bếp mở liên thông phòng khách, hệ thống hút mùi là bắt buộc. FHome Sài Gòn khuyên chọn máy hút mùi công suất tối thiểu 1000m³/h để đảm bảo không gian không bị ám mùi.



Tham khảo thêm phòng bếp nhà phố để có thêm giải pháp thiết kế.
Thiết Kế Phòng Ngủ Nhà Phố 90m2
Phòng ngủ nhà phố 90m² gồm 2 loại: phòng master 15-20m² (có WC riêng) và phòng con 10-15m². Nội thất thông minh như giường hộc kéo, tủ quần áo âm tường là giải pháp tối ưu. Bảng màu trung tính nhẹ nhàng và hệ thống đèn điều chỉnh cường độ giúp tạo không gian nghỉ ngơi thoải mái.
Kích thước giường phù hợp: phòng master 1.8x2m, phòng con 1.6x2m hoặc 1.4x2m (tùy diện tích phòng). Nội thất thông minh tôi thường đề xuất: giường có hộc kéo phía dưới, tủ âm tường cao đến trần, bàn làm việc gấp gọn.
Về màu sắc, FHome Sài Gòn khuyên quý khách chọn gam pastel hoặc trung tính (trắng, be, xám nhạt), tránh màu quá đậm gây cảm giác nặng nề. Ánh sáng nên dùng đèn vàng ấm 2700-3000K, có dimmer để điều chỉnh theo nhu cầu.



Tham khảo thêm Thiết kế phòng ngủ nhà phố để có thêm ý tưởng bố trí.
Thiết Kế Phòng Thờ Nhà Phố 90m2
Phòng thờ nhà phố 90m² nên đặt tại tầng cao nhất (tầng 2 hoặc 3), diện tích 8-15m². Thiết kế trang nghiêm với bàn thờ kích thước theo thước Lỗ Ban, vật liệu gỗ tự nhiên, gam màu trầm ấm và ánh sáng vàng dịu nhẹ.
Vị trí phù hợp: tầng cao nhất, hướng về phía trước nhà. Diện tích: 8-15m² tùy tầng. Kích thước bàn thờ theo thước Lỗ Ban: 1.07m, 1.27m hoặc 1.53m chiều rộng (đây là các số đẹp theo phong thủy).
Vật liệu tôi khuyên quý khách: gỗ tự nhiên như gụ, hương, mun vừa bền vừa trang nghiêm. Tránh gỗ công nghiệp cho bàn thờ.
FHome Sài Gòn lưu ý: không để WC ngay phía trên phòng thờ, tránh nắng chiếu trực tiếp vào bàn thờ. Cửa sổ nhỏ giúp thông thoáng nhưng nên có rèm để điều chỉnh ánh sáng. Không gian phòng thờ cần tách biệt với khu sinh hoạt ồn ào để giữ sự tĩnh lặng, trang nghiêm.


Thiết Kế Nhà Vệ Sinh Nhà Phố 90m2
Nhà vệ sinh nhà phố 90m² thường có 2-3 WC với diện tích 3.5-6m²/WC. Thiết kế phân chia khu khô – ướt bằng vách kính cường lực 8-10mm. Thiết bị treo tường và gạch ốp sáng màu kích thước lớn (60x60cm) tạo cảm giác rộng rãi.
Số lượng WC phù hợp: nhà 1 tầng cần 1-2 WC, nhà 2-3 tầng cần 2-3 WC. Diện tích: WC chính 4-6m², WC phụ 3-4m².
Thiết bị treo tường (bồn cầu, chậu rửa) giúp sàn nhà trông rộng hơn và dễ vệ sinh. Tôi thường khuyên quý khách chọn gạch ốp kích thước lớn 60x60cm, màu sáng ít đường ron hơn tạo cảm giác không gian được nới rộng.
Thông gió là yếu tố FHome Sài Gòn luôn nhấn mạnh: quạt hút công suất phù hợp + cửa sổ nhỏ giúp không gian khô ráo, không bị ẩm mốc.



Tham khảo thêm Thiết kế nhà vệ sinh nhà phố để có thêm giải pháp.
Thiết Kế Cầu Thang Nhà Phố 90m2
Cầu thang nhà phố 90m² chiếm khoảng 8-12m² mỗi tầng (bao gồm chiếu nghỉ). Thiết kế cầu thang bay hoặc cầu thang kính cường lực tạo cảm giác nhẹ nhàng, thanh thoát. Kích thước chuẩn: chiều rộng 0.9-1.2m, bậc cao 15-18cm, bậc rộng 25-28cm, độ dốc 30-35 độ.
Các kiểu cầu thang phù hợp cho nhà phố 90m²:
| Kiểu cầu thang | Đặc điểm | Phù hợp với |
|---|---|---|
| Cầu thang bay | Nhẹ nhàng, hiện đại | Phong cách Hiện đại, Japandi |
| Cầu thang kính | Thoáng, sáng | Nhà hẹp, ít ánh sáng |
| Cầu thang xương cá | Tinh tế, tiết kiệm | Phong cách Tối giản |
Vật liệu nên được cân nhắc kỹ: gỗ tự nhiên mang lại sự ấm cúng, kính cường lực và kim loại thể hiện vẻ đẹp hiện đại.
Về phong thủy, FHome Sài Gòn lưu ý quý khách: cầu thang không nên đặt đối diện cửa chính (tản khí), không nằm giữa nhà (chia cắt không gian). Nên thiết kế cầu thang xoay theo chiều kim đồng hồ để thuận theo dòng khí.



Nguyên Tắc Thiết Kế Nội Thất Nhà Phố 90m2
Thiết kế nội thất nhà phố 90m² cần tuân thủ 4 nguyên tắc cốt lõi: không gian mở liên thông các khu vực, tối ưu ánh sáng tự nhiên qua giếng trời và cửa sổ, màu sắc – vật liệu sáng tạo chiều sâu, và nội thất thông minh đa năng tiết kiệm diện tích.
- Không gian mở: Liên thông phòng khách – bếp – ăn, loại bỏ vách ngăn cứng. Thay vào đó, dùng vách ước lệ như thảm, kệ hở, đảo bếp để phân định. Cách này tạo liên kết thị giác, tăng diện tích cảm nhận 20-30%.
- Tối ưu ánh sáng: Tận dụng cửa sổ lớn, giếng trời tối thiểu 2-3m² đặt giữa nhà. Gương và kính giúp phản chiếu ánh sáng. LED âm trần đa điểm đảm bảo mọi góc đều đủ sáng.
- Màu sắc & Vật liệu: Gam màu sáng (trắng, be, xám nhạt) chiếm 60-70% diện tích. Gỗ tự nhiên, đá marble, kính cường lực là những vật liệu FHome Sài Gòn thường đề xuất.
- Nội thất thông minh: Sofa văng/góc 2-2.2m, kệ TV treo tường, bàn trà đa năng, giường hộc kéo, tủ âm tường. Mỗi món đồ đều cần đảm nhiệm nhiều chức năng để tiết kiệm diện tích.
Theo kinh nghiệm của tôi, giếng trời là yếu tố thường bị bỏ qua nhưng lại tạo ra sự khác biệt lớn cho nhà phố. Với 90m² đất, giếng trời 2-3m² đặt giữa nhà giúp lấy sáng và thông gió cho tất cả các tầng.
Lưu Ý Phong Thủy Khi Thiết Kế Nhà Phố 90m2
Thiết kế nhà phố 90m² cần lưu ý 5 nguyên tắc phong thủy cơ bản: hướng cửa chính theo mệnh gia chủ, vị trí bếp – WC hợp lý, cầu thang không đối diện cửa, phòng thờ ở tầng cao, và bố trí màu sắc theo ngũ hành.
- Hướng cửa chính: Xác định theo tuổi và mệnh của gia chủ. Đây là yếu tố FHome Sài Gòn luôn tư vấn ngay từ đầu vì ảnh hưởng đến toàn bộ bố cục ngôi nhà.
- Vị trí bếp: Không đặt đối diện cửa chính, không nằm dưới WC tầng trên. Bếp hướng Đông hoặc Đông Nam là tốt nhất theo phong thủy.
- Vị trí WC: Không đặt ở trung tâm nhà, không đối diện cửa chính. WC nên nằm ở góc khuất, tránh nhìn thấy ngay khi bước vào.
- Cầu thang: Không đối diện cửa chính (tản khí ra ngoài), không nằm giữa nhà (chia cắt không gian). Nên xoay theo chiều kim đồng hồ để thuận dòng khí.
- Phòng thờ: Đặt tại tầng cao nhất, hướng ra mặt tiền. Không có WC ngay phía trên.
- Màu sắc theo mệnh: Kim (trắng, xám), Mộc (xanh lá), Thủy (xanh dương), Hỏa (đỏ, cam), Thổ (vàng, nâu).
Quý khách có thể tham khảo thêm lưu ý khi thiết kế nội thất nhà phố để có cái nhìn toàn diện hơn.
Kinh Nghiệm Thiết Kế Nội Thất Nhà Phố 90m2
3 kinh nghiệm then chốt khi thiết kế nội thất nhà phố 90m² bao gồm: tối ưu ánh sáng và màu sắc sáng để mở rộng thị giác, tạo sự kết nối liền mạch bằng phong cách đồng bộ, và lựa chọn nội thất thông minh đa chức năng.

- Tối ưu ánh sáng và màu sắc: Ưu tiên gam màu sáng cho tường và trần nhà. Tận dụng ánh sáng tự nhiên qua cửa sổ lớn và giếng trời. Hệ thống đèn chiếu sáng đa điểm đảm bảo mọi góc đều đủ sáng. FHome Sài Gòn cũng khuyên quý khách thêm cây xanh vừa mang lại sức sống, vừa cải thiện không khí trong nhà.
- Tạo sự kết nối liền mạch: Sử dụng một phong cách thiết kế xuyên suốt, đồng bộ về vật liệu và màu sắc chủ đạo giữa các phòng. Thiết kế không gian mở giữa phòng khách và bếp tăng cường sự kết nối và tương tác giữa các thành viên trong gia đình.
- Lựa chọn nội thất thông minh: Đầu tư vào các món đồ đa chức năng: sofa giường, bàn ăn mở rộng, giường có hộc chứa đồ. Nội thất kích thước phù hợp với diện tích giúp không gian ngăn nắp và thoáng đãng.
Quý khách có thể tham khảo thêm kinh nghiệm thiết kế nội thất chung cư để có thêm ý tưởng.
Chi Phí Thiết Kế Nội Thất Nhà Phố 90m2
Chi phí thiết kế nội thất nhà phố 90m² tại FHome Sài Gòn dao động từ 250.000đ – 450.000đ/m² cho phần thiết kế. Tổng chi phí thi công trọn gói từ 700 triệu – 1.5 tỷ đồng tùy thuộc số tầng và phong cách lựa chọn.
Chi phí thiết kế: 250.000 – 450.000đ/m², tùy độ phức tạp của phong cách. Mức giá này đảm bảo sự minh bạch, giúp quý khách dễ dàng dự trù ngân sách.
Chi phí thi công trọn gói theo phân khúc:
| Phân khúc | Đơn giá/m² | Nhà 2 tầng 170m² | Đặc điểm |
|---|---|---|---|
| Cơ bản | 5-7 triệu | 850 triệu – 1.2 tỷ | Vật liệu tiêu chuẩn, thiết kế đơn giản |
| Trung cấp | 8-12 triệu | 1.3 – 2 tỷ | Vật liệu tốt, thiết kế chi tiết |
| Cao cấp | 15-25 triệu | 2.5 – 4.2 tỷ | Vật liệu cao cấp, thiết kế riêng biệt |
Các yếu tố ảnh hưởng đến chi phí: số tầng, phong cách thiết kế, vật liệu sử dụng, thương hiệu nội thất. Tôi khuyên quý khách nên xác định rõ ngân sách và ưu tiên ngay từ đầu để FHome Sài Gòn tư vấn phương án phù hợp nhất.
Quý khách có thể tham khảo chi tiết giá thiết kế thi công nội thất nhà phố để có cái nhìn toàn diện hơn.
| Phong cách | Đơn giá tham khảo (đ/m²) |
| Hiện đại | 250.000 |
| Wabi-Sabi | 250.000 |
| Japandi | 250.000 |
| Nhật Bản | 250.000 |
| Scandinavian | 350.000 |
| Tân cổ điển | 350.000 |
| Luxury | 350.000 |
| Thiết kế theo yêu cầu | 450.000 |
FHome Sài Gòn – Công Ty Thiết Kế Nội Thất Nhà Phố 90m2 Uy Tín Tại TP.HCM
FHome Sài Gòn là đơn vị thiết kế và thi công nội thất nhà phố uy tín tại TP.HCM với hơn 10 năm kinh nghiệm, 500+ dự án hoàn thành. Đội ngũ KTS chuyên nghiệp và xưởng sản xuất nội thất riêng đảm bảo chất lượng từ thiết kế đến thi công.
Chúng tôi chuyên cung cấp dịch vụ thiết kế nội thất nhà phố với đa dạng phong cách, từ hiện đại tối giản đến sang trọng tân cổ điển. Sự uy tín của FHome Sài Gòn được xây dựng trên những nền tảng vững chắc:
- Đội ngũ chuyên nghiệp và tận tâm: Các kiến trúc sư của chúng tôi lấy “Tâm làm tín”, đề cao sự tỉ mỉ trong từng chi tiết nhỏ nhất. Mỗi công trình là một tác phẩm độc đáo, không trùng lặp.
- Quy trình làm việc khép kín: FHome Sài Gòn sở hữu xưởng sản xuất nội thất riêng, kiểm soát chặt chẽ chất lượng từ khâu thiết kế, sản xuất đến thi công hoàn thiện.
- Dịch vụ thi công nội thất nhà phố trọn gói: Đội ngũ thợ lành nghề hơn 10 năm kinh nghiệm, đảm bảo tiến độ đúng cam kết và chất lượng hoàn thiện vượt chuẩn.
- Chính sách bảo hành vượt trội: Bảo hành công trình 1 năm, hỗ trợ hậu mãi trọn đời. Đội ngũ kỹ thuật sẵn sàng phản hồi trong ngày.
Nếu quý khách đang tìm kiếm giải pháp thiết kế nội thất chuyên nghiệp và toàn diện cho ngôi nhà phố 90m² của mình, hãy liên hệ ngay với FHome Sài Gòn để nhận được sự tư vấn chi tiết và tận tình nhất.


Câu Hỏi Thường Gặp Về Thiết Kế Nội Thất Nhà Phố 90m2
1. Nhà phố 90m² thiết kế mấy tầng là hợp lý nhất?
2 tầng là lựa chọn hợp lý nhất cho nhà phố 90m², cân bằng giữa chi phí xây dựng và công năng sử dụng. Tổng diện tích sàn đạt 150-170m², đủ cho gia đình 4-5 người với phân chia rõ khu sinh hoạt chung (tầng 1) và khu nghỉ ngơi riêng tư (tầng 2). Chi phí xây dựng thấp hơn 30-40% so với nhà 3 tầng.
2. Chi phí thiết kế nội thất nhà phố 90m² khoảng bao nhiêu?
Chi phí thiết kế 250.000-450.000đ/m², thi công trọn gói từ 700 triệu – 1.5 tỷ đồng cho nhà 2 tầng (170m² sàn). Phân khúc cơ bản 5-7 triệu/m², trung cấp 8-12 triệu/m², cao cấp 15-25 triệu/m². Chi phí phụ thuộc vào phong cách thiết kế, vật liệu và thương hiệu nội thất lựa chọn.
3. Phong cách thiết kế nào tiết kiệm chi phí nhất cho nhà phố 90m²?
Phong cách Hiện đại – Tối giản tiết kiệm chi phí nhất với đơn giá 5-7 triệu/m² (phân khúc cơ bản). Vật liệu chủ yếu là gỗ công nghiệp MDF, Melamine thay vì gỗ tự nhiên, loại bỏ chi tiết trang trí phức tạp. Japandi và Wabi Sabi yêu cầu ngân sách cao hơn do sử dụng vật liệu tự nhiên.
4. Nhà phố 90m² có nên làm giếng trời không?
Nên làm giếng trời 2-3m² đặt giữa nhà cho nhà phố 90m² từ 2 tầng trở lên. Giếng trời giúp lấy sáng và thông gió tự nhiên cho các tầng giữa, giảm 30-40% chi phí điện chiếu sáng ban ngày. Đặc biệt quan trọng với nhà phố hẹp chỉ có ánh sáng từ mặt tiền và mặt hậu.
5. Thiết kế nhà phố 90m² 3 tầng có cần thang máy không?
Không bắt buộc với gia đình trẻ khỏe mạnh, nhưng nên cân nhắc nếu có người cao tuổi hoặc dự định ở lâu dài. Thang máy mini chiếm 1.5-2m² mỗi tầng, chi phí lắp đặt 150-250 triệu đồng. Giải pháp thay thế: bố trí phòng ngủ ông bà tại tầng 1 để hạn chế leo cầu thang.
6. Phòng khách nhà phố 90m² nên bố trí kiểu nào để rộng rãi?
Bố trí phòng khách liên thông với bếp – ăn, loại bỏ vách ngăn cứng để tăng diện tích cảm nhận 20-30%. Sofa áp tường, kệ TV treo tường, bàn trà đa năng giải phóng lối đi trung tâm rộng 1-1.2m. Sử dụng gam màu sáng (trắng, be, xám nhạt), gương trang trí và ánh sáng tự nhiên tạo chiều sâu thị giác.
7. Bố trí mấy phòng vệ sinh cho nhà phố 90m² là đủ?
Nhà 1 tầng: 1-2 WC. Nhà 2-3 tầng: 2-3 WC (1 WC tầng 1, 1 WC riêng phòng master, 1 WC chung cho các phòng ngủ khác). Diện tích WC chính 4-6m², WC phụ 3-4m². Thiết bị treo tường và phân chia khu khô – ướt bằng vách kính giúp tối ưu không gian.



