Bảng Giá Thiết Kế Nội Thất Nhà Phố Theo Phong Cách
Phí thiết kế nội thất nhà phố theo phong cách dao động từ 250.000 VNĐ/m² (Hiện đại, Tối giản) đến 450.000 VNĐ/m² (Thiết kế theo yêu cầu). Sự chênh lệch này xuất phát từ độ phức tạp của chi tiết và thời gian kiến trúc sư cần đầu tư cho mỗi phong cách. Phong cách có nhiều phào chỉ, hoa văn sẽ tốn công thiết kế hơn so với đường nét tinh gọn.
| Phong cách | Đơn giá tham khảo (đ/m²) |
| Hiện đại | 250.000 |
| Wabi-Sabi | 250.000 |
| Japandi | 250.000 |
| Nhật Bản | 250.000 |
| Scandinavian | 350.000 |
| Tân cổ điển | 350.000 |
| Luxury | 350.000 |
| Thiết kế theo yêu cầu | 450.000 |
Ví dụ 1: Nhà phố 100m² sàn thiết kế phong cách Hiện đại: 100m² × 250.000 VNĐ/m² = 25.000.000 VNĐ.
Ví dụ 2: Nhà phố 200m² sàn thiết kế phong cách Tân cổ điển: 200m² × 350.000 VNĐ/m² = 70.000.000 VNĐ.
Đây là bảng báo giá chi phí thiết kế (phí bản vẽ). Chi phí thi công sẽ phụ thuộc vào vật liệu và khối lượng thực tế. Quý khách được khấu trừ 100% chi phí thiết kế vào tổng giá trị hợp đồng khi chọn dịch vụ thi công trọn gói tại FHome Sài Gòn.
Phong Cách Hiện Đại Và Tối Giản (250.000 VNĐ/m²)
Đơn giá 250.000 VNĐ/m² áp dụng cho phong cách thiết kế hiện đại và Tối giản. Hai phong cách này có đặc điểm chung là đường nét tinh gọn, không sử dụng phào chỉ trang trí và hạn chế chi tiết rườm rà. Thời gian thiết kế ngắn hơn nên đơn giá ở mức thấp nhất. Ví dụ: Nhà phố 100m² sàn = 25.000.000 VNĐ phí thiết kế.
Phong Cách Japandi Và Wabi Sabi (300.000 VNĐ/m²)
Đơn giá 300.000 VNĐ/m² áp dụng cho phong cách Wabi Sabi và Japandi. Đây là sự kết hợp giữa triết lý Nhật Bản và phong cách Scandinavian, đề cao vẻ đẹp bất hoàn hảo và vật liệu tự nhiên. Kiến trúc sư cần am hiểu triết lý thiết kế để thể hiện đúng tinh thần, do đó đơn giá ở mức trung bình. Ví dụ: Nhà phố 150m² sàn = 45.000.000 VNĐ phí thiết kế.
Phong Cách Tân Cổ Điển Và Luxury (350.000-450.000 VNĐ/m²)
Đơn giá 350.000-450.000 VNĐ/m² áp dụng cho phong cách Tân cổ điển và Luxury. Đặc trưng của hai phong cách này là hệ thống phào chỉ phức tạp, họa tiết hoa văn tinh xảo và tuân thủ tỷ lệ vàng trong bố cục. Thời gian thiết kế kéo dài hơn và yêu cầu kỹ thuật cao nên đơn giá ở mức cao nhất. Ví dụ: Nhà phố 200m² sàn × 350.000đ = 70.000.000 VNĐ phí thiết kế.
Chi Phí Thi Công Nội Thất Nhà Phố Theo Không Gian
Chi phí thi công nội thất nhà phố theo không gian dao động từ 18.900.000 VNĐ (phòng ngủ nhỏ) đến 80.000.000 VNĐ (phòng khách đầy đủ). Mức giá đã bao gồm nội thất gỗ MDF An Cường/Ba Thanh chống ẩm và phụ kiện giảm chấn. Đơn vị tính theo m², mét dài (md) hoặc bộ/cái tùy hạng mục.
Bảng giá dưới đây mang tính tham khảo. Chi phí thực tế sẽ được tính dựa trên khối lượng đo đạc tại công trình và có thể điều chỉnh theo thời điểm ký hợp đồng do biến động giá vật tư từ nhà cung cấp.
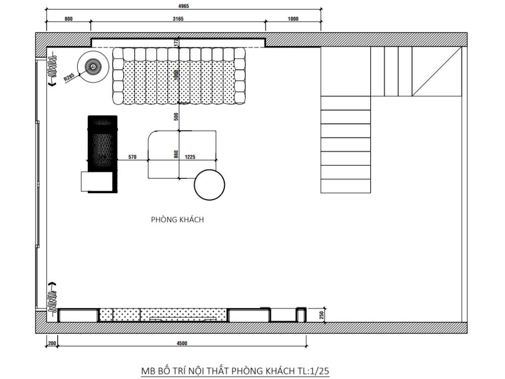
Chi Phí Thi Công Phòng Khách (34-80 Triệu VNĐ)
Chi phí thi công trọn gói phòng khách nhà phố tại FHome Sài Gòn dao động từ 34.000.000-80.000.000 VNĐ. Mức giá bao gồm: tủ giày, sofa, bàn trà, kệ tivi, vách ốp trang trí, rèm cửa, bàn thờ (nếu có) và sàn gỗ. Vật liệu cốt lõi là gỗ MDF chống ẩm Ba Thanh/An Cường cao cấp.
| STT | Công việc thực hiện | Mô tả công việc và vật liệu | Dài (mm) | Rộng (mm) | Cao (mm) | Đơn vị | Khối lượng | Đơn Giá (VND) |
| 1 | Tủ Giày | Khung thùng MDF kháng ẩm Ba Thanh/An Cường phủ Melamine, cánh Pano MDF kháng ẩm Ba Thanh/An Cường Melamine. Phụ kiện giảm chấn | 1,200 | 350 | 2,600 | m² | 3.12 | 3,400,000 – 5,800,000 |
| 2 | Vách Tủ giày | vách xây tường gạch | 600 | 100 | 2,600 | gói | 1.00 | 4,000,000 |
| 3 | Gương soi | Gương khung gỗ/Khung Nhôm, hắt led sau | cái | 1.00 | 2,500,000 – 3,800,000 | |||
| 4 | Sofa | Bọc Vải/Da theo thiết kế | 1,500 | md | 1.50 | 5,100,000 – 12,000,000 | ||
| 5 | Sofa đơn | Bọc Vải/Da theo thiết kế | 600 | cái | 1.00 | 2,800,000 – 5,800,000 | ||
| 6 | Bàn trà | Gỗ Tự nhiên/ Gỗ MDF/ mặt đá và chân inox | cái | 1.00 | 3,800,000 – 12,000,000 | |||
| 7 | Kệ tivi | Khung thùng MDF kháng ẩm Ba Thanh/An Cường phủ Melamine, cánh Pano MDF kháng ẩm Ba Thanh/An Cường Melamine | 1,500 | 250 | 34 | md | 1.5 | 2,800,000 – 4,800,000 |
| 8 | Vách sau Sofa | Hoàn thiện theo thiết kế tuỳ các loại vật liệu như Gỗ/Thạch cao/Đá/PVC…v.v | 2,100 | 2,600 | m² | 5.46 | 1,500,000 – 3,500,000 | |
| Led Thanh Nhôm, Nguồn, Công tắc cảm biến chạm | bộ | 1.00 | 2,000,000 | |||||
| 9 | Vách tivi | Hoàn thiện theo thiết kế tuỳ các loại vật liệu như Gỗ/Thạch cao/Đá/PVC…v.v | 1,645 | 2,600 | m² | 4.28 | 1,500,000 – 3,500,000 | |
| Led Thanh Nhôm, Nguồn, Công tắc cảm biến chạm | bộ | 1.00 | 2,000,000 | |||||
| 10 | Bàn thờ | Gỗ MDF kháng ẩm Ba Thanh/An Cường Sơn 2K | bộ | 1.00 | 3,500,000 – 15,000,000 | |||
| 11 | Vòm cửa lối đi | Thạch cao, khung xương Vĩnh Tường | bộ | 1.00 | 1,200,000 | |||
| 12 | Rèm Cửa | Rèm vải 2 lớp | bộ | 1.00 | 4,000,000 | |||
| 13 | Lót sàn phòng khách | Sàn Gỗ/Nhựa Giả Gỗ | m² | 27.00 | 300,000 – 800,000 |
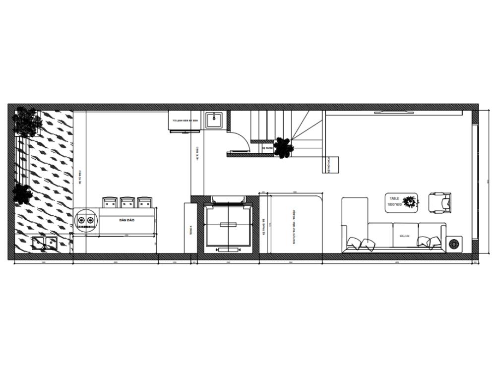
Chi Phí Thi Công Phòng Bếp (25-67 Triệu VNĐ)
Chi phí thi công trọn gói phòng bếp nhà phố tại FHome Sài Gòn dao động từ 25.000.000-67.000.000 VNĐ. Mức giá bao gồm: hệ tủ bếp trên/dưới, khoang tủ lạnh, đá ốp mặt bếp và kính ốp lưng. Tổng mức đầu tư thay đổi tùy theo lựa chọn dòng đá (tự nhiên hoặc nhân tạo) và phụ kiện thông minh.
| STT | Công việc thực hiện | Mô tả công việc và vật liệu | Dài (mm) | Rộng (mm) | Cao (mm) | Đơn vị | Khối lượng | Đơn Giá (VND) |
| 1 | Hệ tủ kệ trang trí cạnh bếp | Khung thùng MDF kháng ẩm Ba Thanh/An Cường phủ Melamine, cánh Pano MDF kháng ẩm Ba Thanh/An Cường | 800 | 180 | 2,600 | md | 2.60 | 3,400,000 – 5,800,000 |
| 2 | Tủ Bếp Dưới | Khung thùng MDF kháng ẩm Ba Thanh/An Cường phủ Melamine, cánh Pano MDF kháng ẩm Ba Thanh/An Cường | 3,550 | 600 | 900 | md | 3.55 | 4,300,000 – 5,800,000 |
| 3 | Tủ Bếp Trên Tiêu Chuẩn | Khung thùng MDF kháng ẩm Ba Thanh/An Cường phủ Melamine, cánh Pano MDF kháng ẩm Ba Thanh/An Cường chấn | 3,800 | 350 | 800 | md | 3.80 | 4,300,000 – 5,800,000 |
| Tủ Bếp Trên Vượt Tiêu Chuẩn | Khung thùng MDF kháng ẩm Ba Thanh/An Cường phủ Melamine, cánh Pano MDF kháng ẩm Ba Thanh/An Cường | 3,800 | 350 | 300 | md | 3.80 | 2,100,000 – 3,600,000 | |
| 4 | Khoang bao tủ lạnh | Khung thùng MDF kháng ẩm Ba Thanh/An Cường phủ Melamine, cánh Pano MDF kháng ẩm Ba Thanh/An Cường | 900 | 600 | 2,600 | m² | 2.34 | 2,500,000 – 3,800,000 |
| 5 | Led Bếp | Led Thanh Nhôm, Nguồn, Công tắc cảm biến chạm | bộ | 1.00 | 2,000,000 | |||
| 6 | Đá Ốp Mặt Bếp | Đá Nhân Tạo/ Đá Tự Nhiên | 3,550 | md | 3.55 | 3,000,000 – 20,000,000 | ||
| 7 | Lưng Bếp | Gạch Thẻ/ Đá Nhân Tạo/ Đá Tự Nhiên | 3,500 | 600 | md | 3.50 | 3,000,000 – 20,000,000 |
Chi Phí Thi Công Phòng Ngủ (18.9-40.7 Triệu VNĐ)
Chi phí thi công phòng ngủ nhà phố tại FHome Sài Gòn từ 18.900.000-25.800.000 VNĐ (phòng nhỏ) và 29.000.000-40.700.000 VNĐ (phòng Master). Sự chênh lệch do phòng Master có thêm: vách đầu giường trang trí, bàn trang điểm và gương LED cảm ứng.
1. Phòng ngủ Master
| STT | Công việc thực hiện | Mô tả công việc và vật liệu | Dài (mm) | Rộng (mm) | Cao (mm) | Đơn vị | Khối lượng | Đơn Giá (VND) |
| 1 | Giường Ngủ | Khung thùng MDF kháng ẩm Ba Thanh/An Cường phủ Melamine, cánh Pano MDF kháng ẩm Ba Thanh/An Cường Melamine | 1800 | 2000 | 350 | Cái | 1 | 6,500,000 – 9,800,000 |
| 2 | Vách đầu giường | Hoàn thiện theo thiết kế tuỳ các loại vật liệu như Gỗ/Thạch cao/Đá/PVC…v.v | m² | 9.00 | 1,500,000 – 3,500,000 | |||
| Led Thanh Nhôm, Nguồn, Công tắc cảm biến chạm | bộ | 1.00 | 2,000,000 | |||||
| 3 | Tủ Áo | Khung thùng MDF kháng ẩm Ba Thanh/An Cường phủ Melamine, cánh Pano MDF kháng ẩm Ba Thanh/An Cường Melamine | 1,700 | 600 | 2,600 | m² | 4.42 | 3,600,000 – 5,200,000 |
| Led tủ áo | Led Thanh Nhôm, Nguồn, Công tắc cảm biến chạm | bộ | 1.00 | 2,000,000 | ||||
| 4 | Bàn trang điểm | Khung thùng MDF kháng ẩm Ba Thanh/An Cường phủ Melamine, cánh Pano MDF kháng ẩm Ba Thanh/An Cường Melamine | 1,310 | 550 | 750 | cái | 1.00 | 4,100,000 – 5,600,000 |
| 5 | Gương soi | Gương khung gỗ/Khung Nhôm, hắt led sau | cái | 1.00 | 2,500,000 – 3,800,000 | |||
| 6 | Rèm Cửa | Rèm vải 2 lớp | bộ | 1.00 | 4,000,000 | |||
| 7 | Tủ tivi treo | Khung thùng MDF kháng ẩm Ba Thanh/An Cường phủ Melamine, cánh Pano MDF kháng ẩm Ba Thanh/An Cường | 1,800 | 350 | 350 | md | 1.80 | 2,800,000 – 4,800,000 |
2. Phòng ngủ nhỏ
| STT | Công việc thực hiện | Mô tả công việc và vật liệu | Dài (mm) | Rộng (mm) | Cao (mm) | Đơn vị | Khối lượng | Đơn Giá (VND) |
| 1 | Tủ Áo | Khung thùng MDF kháng ẩm Ba Thanh/An Cường phủ Melamine, cánh Pano MDF kháng ẩm Ba Thanh/An Cường Melamine | 2,380 | 2,600 | m² | 6.19 | 3,600,000 – 5,200,000 | |
| 2 | Led tủ áo | Led Thanh Nhôm, Nguồn, Công tắc cảm biến chạm | bộ | 1.00 | 2,000,000 | |||
| 3 | Tủ tivi | Khung thùng MDF kháng ẩm Ba Thanh/An Cường phủ Melamine, cánh Pano MDF kháng ẩm Ba Thanh/An Cường Melamine | 1,800 | 350 | 550 | md | 1.80 | 2,800,000 – 4,800,000 |
| 4 | Rèm Cửa | Rèm vải 2 lớp | bộ | 1.00 | 4,000,000 | |||
| 5 | Giường Ngủ | Khung thùng MDF kháng ẩm Ba Thanh/An Cường phủ Melamine, cánh Pano MDF kháng ẩm Ba Thanh/An Cường Melamine | 1800 | 2000 | 350 | Cái | 1 | 6,500,000 – 9,800,000 |
Chi Phí Thi Công Phòng Vệ Sinh (~49.3 Triệu VNĐ)
Chi phí cải tạo và hoàn thiện phòng tắm/WC nhà phố tiêu chuẩn tại FHome Sài Gòn là 49.300.000 VNĐ. Ngân sách bao gồm nội thất rời (tủ lavabo, gương, thiết bị vệ sinh) và xử lý phần thô (tháo dỡ, chống thấm, xây tô). Công tác chống thấm là yếu tố then chốt, ảnh hưởng trực tiếp đến độ bền kết cấu nhà phố.
| STT | Công việc thực hiện | Mô tả công việc và vật liệu | Đơn vị | Khối lượng | Đơn Giá (VND) |
| 1 | Tháo dỡ sàn + tường WC chung | Đục cắt và xử lý bề mặt tường và sàn | m² | 25 | 300,000 |
| 2 | Tô lót bề mặt tường sàn | Công thợ và vật tư bê tông, hồ keo tô lót | gói | 1.00 | 2,000,000 |
| 3 | Xử lý chống thấm tường và sàn | Keo chống thấm chuyên dụng | gói | 1.00 | 6,000,000 |
| 4 | Xây vòm ngăn bồn tắm | Gạch và thép gia cố kết hợp Cemboard | gói | 1.00 | 5,500,000 |
| 5 | Xây bồn tắm | Nhân công và vật tư phụ | gói | 1.00 | 2,500,000 |
| 6 | Bồn Tắm | Bồn tắm nằm không chân (đặt sàn) | Cái | 1.00 | 8,500,000 |
| 7 | Mài và xử lý lại Lavabo | Cải tạo lại lavabo hiện trạng theo thiết kế | gói | 1.00 | 1,500,000 |
| 8 | Đổ sàn và cải tạo sàn | Tô lót và phủ keo tạo bề mặt phẳng | gói | 1.00 | 3,500,000 |
| 9 | Xử lý và đắp vữa bề mặt tường | Đắp vữa và hồ, tạo bê tông tường, sơn phun tạo hiệu ứng, cán bề mặt | gói | 1.00 | 12,500,000 |
| 10 | Tủ dưới Lavabo | Gỗ Nhựa Picomat chịu nước phủ Melamine, phụ kiện giảm chấn | bộ | 1.00 | 3,500,000 |
| 11 | Led tủ lavabo | Led Thanh Nhôm Tản Nhiệt, Nguồn DC 12V, Công tắc cảm biến chạm | bộ | 1.00 | 1,000,000 |
| 12 | Gương soi | Gương khung nhôm sơn tĩnh điện, hắt led sau | cái | 1.00 | 2,500,000 |
Bảng Giá Thi Công Nội Thất Nhà Phố Trọn Gói Theo Diện Tích
Chi phí thi công nội thất nhà phố trọn gói dao động từ 130.000.000 VNĐ (40m² sàn, gói Tiết kiệm) đến 2.000.000.000 VNĐ (250m² sàn, gói Cao cấp). Giá đã bao gồm cả phần hoàn thiện thô và phần nội thất.
FHome Sài Gòn cung cấp 3 gói dịch vụ: Tiết kiệm (MDF tiêu chuẩn, phong cách Hiện đại), Tiêu chuẩn (MDF An Cường chống ẩm, phong cách Japandi/Wabi Sabi) và Cao cấp (gỗ tự nhiên, đá tự nhiên, phong cách Luxury/Tân cổ điển).
Lưu ý quan trọng: Đơn giá/m² giống nhau cho mọi diện tích sàn (40-250m²) vì chi phí vật liệu và nhân công tính trên mỗi m² là như nhau. Tổng chi phí = Diện tích sàn × (Đơn giá phần thô + Đơn giá nội thất).
Chi Phí Hoàn Thiện Phần Thô Nội Thất Nhà Phố
Chi phí hoàn thiện phần thô cho nhà phố tại FHome Sài Gòn dao động từ 35.000.000-205.000.000 VNĐ, áp dụng cho diện tích sàn 40-100m². Phần thô bao gồm: đập phá, xây tô, ốp lát, trần thạch cao, sơn bả và hệ thống điện nước (M&E). Báo giá thi công nội thất đồ gỗ thường chưa bao gồm chi phí này.
| Hạng mục | Đơn giá | Đơn vị tính |
| Trần thạch cao | 250.000₫ – 600.000₫ | m² |
| Sơn nước | 150.000₫ – 300.000₫ | m² |
| Rèm cửa 1 lớp | 800.000₫ – 1.200.000₫ | mét dài |
| Rèm cửa 2 lớp | 1.500.000₫ – 2.500.000₫ | mét dài |
| Sàn gỗ công nghiệp | 400.000₫ – 550.000₫ | m² |
| Sàn gạch | 350.000₫ – 600.000₫ | m² |
| Đèn | 180.000₫ – 450.000₫ | Bóng tuỳ loại |
| Che chắn công trình | 45.000₫ | m² |
| Đổ rác và xà bần trong quá trình thi công | 2.000.000₫ – 5.000.000₫ | gói |
| Vệ sinh công nghiệp | 45.000₫ | m² |
| Sơn hiệu ứng tường nhà | 350.000₫ – 600.000₫ | m² |
| Đi lại hệ thống điện và nước toàn nhà | 3.000.000₫ – 25.000.000₫ | gói |
| Điện, nước,… | Liên hệ | Hạng mục |
Bảng Giá Thi Công Trọn Gói Theo Diện Tích Sàn
Bảng giá dưới đây áp dụng cho mọi diện tích sàn từ 40-250m². Gia chủ chỉ cần nhân diện tích sàn thực tế với đơn giá tương ứng để tính tổng chi phí.
| Gói | Đơn giá Phần thô (VNĐ/m²) | Đơn giá Nội thất (VNĐ/m²) | Đặc điểm |
| Tiết kiệm | 1.000.000 – 1.500.000 | 1.800.000 – 2.700.000 | MDF tiêu chuẩn, phong cách Hiện đại |
| Tiêu chuẩn | 1.500.000 – 2.500.000 | 2.700.000 – 4.500.000 | MDF An Cường chống ẩm, Japandi/Wabi Sabi |
| Cao cấp | 2.500.000 – 4.000.000+ | 4.500.000 – 10.000.000+ | Gỗ tự nhiên, đá tự nhiên, Luxury/Tân cổ điển |
Ví dụ tính toán:
- Nhà 3 tầng 4x15m = 180m² sàn × (2.000.000 + 3.500.000) = 990.000.000 VNĐ (Gói Tiêu chuẩn)
- Nhà 2 tầng 5x20m = 200m² sàn × (3.500.000 + 7.000.000) = 2.100.000.000 VNĐ (Gói Cao cấp)
Phí Thiết Kế Nội Thất Nhà Phố Được Tính Như Thế Nào?
Phí thiết kế nội thất nhà phố được tính theo công thức: Diện tích sàn (m²) × Đơn giá (VNĐ/m²). Diện tích sàn là tổng diện tích các tầng, không bao gồm sân thượng hở và ban công không có mái che. Đơn giá dao động từ 250.000 đến 450.000 VNĐ/m² tùy thuộc vào độ phức tạp của phong cách thiết kế.
Gói thiết kế tiêu chuẩn tại FHome Sài Gòn bao gồm: bản vẽ mặt bằng bố trí công năng, bản vẽ kỹ thuật thi công 2D, phối cảnh 3D toàn bộ không gian và dự toán chi phí thi công. Gia chủ sẽ nhận đầy đủ hồ sơ này trước khi tiến hành thi công.
Lưu ý: FHome Sài Gòn áp dụng chính sách khấu trừ 100% phí thiết kế vào tổng giá trị hợp đồng khi quý khách ký hợp đồng thi công trọn gói. Đây là quyền lợi giúp tối ưu ngân sách đầu tư cho gia chủ.
Công Thức Tính Phí Thiết Kế Nội Thất Theo m²
| Thành phần | Cách tính |
| Diện tích sàn | Tổng diện tích các tầng (không tính sân thượng hở, ban công) |
| Đơn giá | Theo phong cách: 250.000 – 450.000 VNĐ/m² |
| Phí thiết kế | = Diện tích sàn × Đơn giá |
Ví dụ tính toán:
- Nhà phố 4x10m, 3 tầng = 120m² sàn × 300.000đ/m² = 36.000.000 VNĐ
- Nhà phố 5x20m, 2 tầng = 200m² sàn × 350.000đ/m² = 70.000.000 VNĐ
Các Yếu Tố Ảnh Hưởng Đến Đơn Giá Thiết Kế
Đơn giá thiết kế không cố định mà phụ thuộc vào 4 yếu tố chính. Thứ nhất là phong cách thiết kế nội thất – phong cách Hiện đại có đơn giá thấp hơn Tân cổ điển do đường nét đơn giản hơn. Thứ hai là số lượng không gian cần thiết kế, chỉ tầng trệt sẽ khác so với toàn bộ nhà. Thứ ba là yêu cầu về bản vẽ, có phối cảnh 3D hay chỉ cần 2D kỹ thuật. Thứ tư là mức độ cá nhân hóa theo yêu cầu đặc biệt của gia chủ.
Dự Án Thiết Kế Và Thi Công Nhà Phố Thực Tế Tại FHome Sài Gòn
FHome Sài Gòn đã hoàn thành hơn 500 dự án thiết kế thi công nội thất, trong đó có nhiều nhà phố tại TP.HCM với phong cách đa dạng từ Modern Luxury đến Wabi Sabi. Dưới đây là 3 case study tiêu biểu với thông tin chi tiết về diện tích, chi phí và phong cách thiết kế.
Dự Án Nhà Phố 180m² – Modern Luxury – Thủ Đức
Dự án nhà phố tại phường Long Bình thể hiện phong cách Modern Luxury. FHome Sài Gòn phối hợp các vật liệu cao cấp: đá Marble trắng vân mây khổ lớn tại phòng khách, hệ kính cường lực cho khu vực phòng thay đồ và gỗ An Cường tông màu trầm ấm.
Thông tin dự án:
- Quy mô: 1 Trệt 2 Lầu | 180m² sàn
- Địa điểm: Phường Long Bình, TP. Thủ Đức
- Phong cách: Modern Luxury
- Chi phí thiết kế: 45.000.000 VNĐ (180m² × 250.000đ/m²)
- Chi phí thi công: 1.100.000.000 – 1.350.000.000 VNĐ
| STT | Hạng mục | Chi tiết hạng mục thực tế từ hình ảnh | Giá tiền (VNĐ) |
| 1 | Phòng khách | Vách tivi ốp đá Marble trắng vân mây khổ lớn kết hợp lam gỗ sang trọng. Sofa da cao cấp tông màu nâu bò/xám ghi hiện đại. | 1.100.000.000 – 1.350.000.000 |
| 2 | Phòng Master & Thay đồ | Hệ tủ áo cánh kính cường lực (Glass Wardrobe) khung nhôm xi mạ, tích hợp đèn LED cảm biến bên trong. Giường ngủ bọc nệm nỉ đầu giường. | |
| 3 | Phòng ngủ phụ | Thiết kế tối giản với tông trắng chủ đạo, tủ áo kịch trần kết hợp kệ trang trí/bàn học tối ưu diện tích. | |
| 4 | Phòng tắm & WC | Ốp gạch vân đá toàn bộ tường sàn. Trang bị bồn tắm nằm, vách kính tắm đứng và gương Led cảm ứng. | |
| 5 | Phong cách | Modern Luxury – Đẳng cấp & Thời thượng. |




Dự Án Tầng Trệt 65m² – Hiện Đại – Long Bình
FHome Sài Gòn kiến tạo tầng trệt 65m² thành không gian mở ấn tượng. Điểm nhấn là sự kết nối giữa phòng khách và bếp thông qua khoảng giếng trời xanh mát. Vách ốp tối màu tương phản với sofa kem, kết hợp hệ thống đèn LED hắt điểm tạo chiều sâu cho không gian.
Thông tin dự án:
- Quy mô: Tầng trệt (Phòng khách – Giếng trời – Bếp ăn) | 65m²
- Địa điểm: Phường Long Bình, TP. Thủ Đức
- Phong cách: Hiện đại Luxury
- Chi phí thiết kế: 16.250.000 VNĐ (65m² × 250.000đ/m²)
- Chi phí thi công: 220.000.000 – 300.000.000 VNĐ
| STT | Hạng mục | Chi tiết hạng mục thực tế | Giá tiền (VNĐ) |
| 1 | Phòng khách | Sofa nỉ cao cấp màu kem, ghế Armchair cam đất điểm nhấn. Vách tivi ốp lam sóng kết hợp tấm ốp than tre/PVC vân đá đen sang trọng. | 220.000.000 – 300.000.000 |
| 2 | Phòng bếp | Hệ tủ bếp chữ I kịch trần (MDF An Cường phối màu vân gỗ & trắng). Bàn đảo bếp lớn kết hợp bàn ăn mặt đá Vicostone trắng vân mây. | |
| 3 | Cải tạo thô & Decor | Lát sàn gạch khổ lớn (80×80 hoặc 60×120 bóng kiếng). Xử lý tường tiểu cảnh giếng trời, trồng cây xanh. Hệ vòm cong ngăn chia không gian. | |
| 4 | Phong cách | Hiện đại Luxury – Sang trọng & Kết nối thiên nhiên. |




Dự Án Nhà Phố 96m² – Wabi Sabi – Bình Thạnh
Đây là dự án nhà phố kết hợp kinh doanh Spa với phong cách Wabi Sabi mix Modern Curves. FHome Sài Gòn phá bỏ sự cứng nhắc của kết cấu nhà ống bằng ngôn ngữ đường cong. Điểm nhấn là hệ cầu thang xoắn ốc uốn lượn và các vách ngăn vòm cong. Tông màu Be chủ đạo kết hợp sơn hiệu ứng cam đất tạo cảm giác ấm cúng, mộc mạc.
Thông tin dự án:
- Quy mô: 1 Trệt 1 Lầu (kết hợp Spa) | 96m² sàn
- Địa điểm: Phường Bình Thạnh, TP.HCM
- Phong cách: Wabi Sabi + Modern Curves
- Chi phí thiết kế: 24.000.000 VNĐ (96m² × 250.000đ/m²)
- Chi phí thi công: 550.000.000 – 750.000.000 VNĐ
Lưu ý: Chi phí cao hơn thông thường do kỹ thuật thi công trần vách thạch cao uốn cong và sơn hiệu ứng thủ công.
| STT | Hạng mục | Chi tiết hạng mục thực tế từ hình ảnh | Giá tiền (VNĐ) |
| 1 | Khu vực Sảnh & Spa | Hệ vách vòm thạch cao uốn cong sơn hiệu ứng nghệ thuật. Quầy lễ tân và kệ trưng bày bo góc mềm mại. | 550.000.000 – 750.000.000 |
| 2 | Cầu thang & Thông tầng | Cầu thang xoắn ốc đúc hoặc khung sắt ốp gỗ, tích hợp đèn LED chân cầu thang – Điểm nhấn đắt giá nhất của ngôi nhà. | |
| 3 | Phòng bếp & Ăn | Bàn ăn tròn kết hợp vách trang trí vòm cong màu cam đất. Tủ bếp chữ L hiện đại tông trắng – xám. | |
| 4 | Phòng ngủ | Giường ngủ bọc nỉ, vách đầu giường ốp gỗ kết hợp nệm. Tủ áo kịch trần kết hợp bàn trang điểm treo. | |
| 5 | Phòng tắm | Ốp gạch Terrazzo hạt nhuyễn hoặc vân mây. Lavabo đặt bàn, gương soi cảm ứng hình dáng tự do. |




Quy Trình Báo Giá Và Thiết Kế Thi Công Nhà Phố Tại FHome Sài Gòn
FHome Sài Gòn triển khai quy trình 6 bước chuẩn mực từ tư vấn đến bàn giao, đảm bảo minh bạch về chi phí và tiến độ. Mỗi bước được thực hiện tỉ mỉ với sự giám sát chặt chẽ từ đội ngũ kiến trúc sư có kinh nghiệm.
- Bước 1 – Tư vấn thiết kế: FHome Sài Gòn tiếp nhận thông tin từ gia chủ, tư vấn lựa chọn mẫu thiết kế và các phong cách trong thiết kế nội thất phù hợp. Đội ngũ kiến trúc sư lắng nghe nhu cầu và đưa ra giải pháp cân bằng giữa ngân sách và chất lượng thẩm mỹ.
- Bước 2 – Khảo sát hiện trạng: Đội ngũ kỹ thuật tiến hành khảo sát và đo đạc công trình thực tế để thu thập dữ liệu chính xác về kích thước và kết cấu. Quá trình này đảm bảo thiết kế phù hợp với điều kiện thực tế của ngôi nhà.
- Bước 3 – Chốt báo giá, ký hợp đồng: FHome Sài Gòn chốt phương án thiết kế cuối cùng, hoàn thiện hợp đồng và thực hiện thanh toán đợt đầu. Mọi điều khoản được trình bày minh bạch, đảm bảo quyền lợi cho cả hai bên.
- Bước 4 – Vẽ thiết kế 2D & 3D: Kiến trúc sư lên bản vẽ 2D chi tiết, sau đó tạo phối cảnh 3D để gia chủ dễ dàng hình dung không gian thực tế. Công nghệ render hiện đại tạo ra hình ảnh chân thực, giúp đánh giá và điều chỉnh trước khi thi công.
- Bước 5 – Thi công hạng mục: FHome Sài Gòn sản xuất nội thất tại xưởng và lắp đặt hoàn thiện tại công trình. Quá trình tuân thủ nghiêm ngặt các thông số trong bản vẽ kỹ thuật.
- Bước 6 – Nghiệm thu & Bàn giao: FHome Sài Gòn bàn giao trọn bộ hồ sơ thiết kế gồm bản vẽ kỹ thuật, lưu ý khi thiết kế nội thất nhà phố, thuyết minh thi công và danh mục vật tư. Gia chủ nhận hồ sơ hoàn chỉnh làm cơ sở theo dõi và giám sát chất lượng.

5 Yếu Tố Quyết Định Chi Phí Thiết Kế Và Thi Công Nội Thất Nhà Phố
5 yếu tố chính quyết định chi phí thiết kế và thi công nội thất nhà phố gồm: diện tích sàn, chất lượng vật liệu, mức độ phức tạp công trình, phong cách thiết kế và phụ kiện trang trí. Hiểu rõ các yếu tố này giúp gia chủ kiểm soát ngân sách và tránh phát sinh không mong muốn.
- Diện Tích Mặt Sàn Nhà Phố: Diện tích là biến số đầu tiên. Tổng diện tích sàn xây dựng (gồm các tầng, ban công, sân thượng) càng lớn thì khối lượng vật tư và nhân công càng cao. Tuy nhiên, công trình quy mô lớn thường được áp dụng đơn giá/m² ưu đãi hơn nhờ tối ưu chi phí vận hành.
- Chất Lượng Của Đồ Nội Thất: Đây là yếu tố tạo khoảng cách giá lớn nhất. Ngân sách thay đổi hoàn toàn tùy thuộc vào việc gia chủ chọn gỗ MDF thường, gỗ chống ẩm An Cường hay gỗ tự nhiên (Sồi, Óc chó). Phụ kiện kim khí từ thương hiệu Blum, Hafele có giá cao hơn nhưng đảm bảo độ bền vượt trội.
- Mức Độ Phức Tạp Của Công Trình: Chi phí thi công nhà phố chịu ảnh hưởng lớn bởi hiện trạng. Nhà trong hẻm nhỏ, cầu thang hẹp làm tăng chi phí vận chuyển thủ công. Nhà cải tạo cần xử lý chống thấm, gia cố kết cấu hay đập phá tường cũ sẽ tốn kém hơn nhiều so với nhà xây mới.
- Phong Cách Thiết Kế Nội Thất: Mỗi phong cách có “định mức” riêng. Phong cách Tân cổ điển hay Luxury luôn đắt đỏ do yêu cầu tỉ mỉ trong phào chỉ và vật liệu cao cấp (đá, kim loại mạ). Phong cách Hiện đại hay Tối giản giúp tiết kiệm chi phí hơn nhờ đường nét tinh gọn.
- Phụ Kiện Trang Trí: Các hạng mục Decor như đèn chùm, rèm cửa thông minh, thảm hay tranh nghệ thuật chiếm tỷ trọng không nhỏ. Dù thường nằm ngoài báo giá thi công phần gỗ cố định, gia chủ vẫn cần liệt kê chi tiết vào bảng dự toán để kiểm soát dòng tiền khi hoàn thiện nhà.

7 Lưu Ý Khi Chọn Đơn Vị Thiết Kế Thi Công Nội Thất Nhà Phố
Thiết kế nội thất nhà phố và thi công nội thất nhà phố đòi hỏi kỹ thuật xử lý kết cấu phức tạp hơn chung cư. Để sở hữu ngôi nhà bền đẹp với chi phí hợp lý, hãy tham khảo 7 tiêu chí đánh giá đơn vị uy tín dưới đây.
1. Chọn đơn vị có pháp nhân rõ ràng: Ưu tiên các công ty có văn phòng đại diện và hồ sơ năng lực minh bạch. Đơn vị sở hữu xưởng sản xuất trực tiếp như FHome Sài Gòn sẽ giúp tối ưu chi phí trung gian và kiểm soát chất lượng vật liệu đầu vào.
2. Kiểm tra kinh nghiệm và portfolio nhà phố: Nhà phố thường gặp vấn đề đặc thù như xử lý chống thấm, bố trí cầu thang hay kết cấu chịu lực. Hãy xem xét kỹ các công trình nhà phố thực tế mà đơn vị đã hoàn thiện.
3. Hợp đồng và quy trình minh bạch: Hợp đồng chuẩn mực phải liệt kê chi tiết chủng loại vật liệu (mã ván, hãng sơn, thương hiệu phụ kiện), tiến độ thanh toán và cam kết thời gian bàn giao.
4. Vật liệu có nguồn gốc rõ ràng: Yêu cầu đơn vị cam kết sử dụng vật liệu chính hãng có hóa đơn chứng từ. Ví dụ: Ván gỗ An Cường, phụ kiện Hafele, Blum, Imundex.
5. Bản thiết kế đầy đủ (2D + 3D + M&E): Ngoài bản vẽ phối cảnh 3D, hồ sơ thiết kế bắt buộc phải có bản vẽ kỹ thuật 2D chi tiết, đặc biệt là sơ đồ điện nước (M&E) để đội thợ thi công chính xác.
6. Giá cả hợp lý: Cảnh giác với báo giá “siêu rẻ” bất thường vì thường đi kèm cắt giảm chất lượng. Hãy so sánh bảng báo giá chi tiết (khối lượng, quy cách vật liệu) giữa các đơn vị.
7. Chính sách bảo hành rõ ràng: Hỏi rõ chính sách bảo hành trước khi ký kết. FHome Sài Gòn áp dụng bảo hành 1 năm cho công trình và hỗ trợ bảo trì hậu mãi trọn đời.

Vì Sao Gia Chủ Tin Chọn FHome Sài Gòn?
FHome Sài Gòn là đơn vị chuyên thiết kế thi công nội thất nhà phố và thiết kế nội thất chung cư uy tín tại TP.HCM. Với hơn 500 dự án hoàn thiện và năng lực sản xuất 15 công trình mỗi tháng, FHome Sài Gòn mang đến giải pháp thiết kế tinh tế cho mọi gia chủ.
- 500+ dự án hoàn thiện: Kinh nghiệm thực tế với đa dạng phong cách và quy mô công trình
- Xưởng sản xuất 400m²: Máy móc nhập khẩu hiện đại, đạt tiêu chuẩn xuất khẩu An Cường
- 10+ năm kinh nghiệm: Đội ngũ thợ giàu kinh nghiệm trong ngành nội thất
- Chuyên Japandi, Wabi Sabi, Zen: Thành thạo các phong cách Á Đông tinh tế
- Quy trình trọn gói A-Z: Từ tư vấn, thiết kế, sản xuất đến bàn giao với quy chuẩn rõ ràng
- Bảo hành 1 năm + Hậu mãi trọn đời: Hỗ trợ lâu dài, đảm bảo sự yên tâm cho gia chủ
Quý khách quan tâm đến báo giá thiết kế thi công nội thất chung cư có thể tham khảo thêm bài viết chi tiết của FHome Sài Gòn.



Câu Hỏi Thường Gặp Về Phí Thiết Kế Nội Thất Nhà Phố (FAQ)
Phí Thiết Kế 3D Có Được Miễn Khi Thi Công Trọn Gói Không?
Có. Tại FHome Sài Gòn, quý khách được khấu trừ 100% chi phí thiết kế vào tổng giá trị hợp đồng khi ký hợp đồng thi công nội thất trọn gói. Đây là quyền lợi giúp tối ưu ngân sách đầu tư.
Giá Thiết Kế Nội Thất Nhà Phố Bao Nhiêu 1m²?
Giá thiết kế nội thất nhà phố dao động từ 250.000 VNĐ/m² (Hiện đại, Tối giản) đến 450.000 VNĐ/m² (Thiết kế theo yêu cầu). Mức giá phụ thuộc vào độ phức tạp của phong cách thiết kế và yêu cầu cá nhân hóa từ gia chủ.
Thời Gian Hoàn Thiện Trọn Gói Một Căn Nhà Phố 2 Tầng Là Bao Lâu?
Trung bình từ 2.5-3.5 tháng. Giai đoạn thiết kế và chốt hồ sơ mất 15-20 ngày, giai đoạn sản xuất và lắp đặt từ 45-60 ngày. Thời gian thực tế còn phụ thuộc vào khối lượng và mức độ phức tạp của công trình. Tham khảo thêm mẫu nhà phố 2 tầng tại FHome Sài Gòn.
FHome Có Nhận Thi Công Nhà Phố Ở Các Tỉnh Lân Cận Không?
Có. FHome Sài Gòn thường xuyên thực hiện dự án tại Đồng Nai, Bình Dương, Long An, Bà Rịa – Vũng Tàu. Với các tỉnh xa, báo giá sẽ có thêm phụ phí vận chuyển và công tác phí hợp lý.



